Overview
The digital bus system is the primary system that permits data transmission between the line replaceable units (LRUs). Most of the information transfer between systems is accomplished through the use of digital data buses.
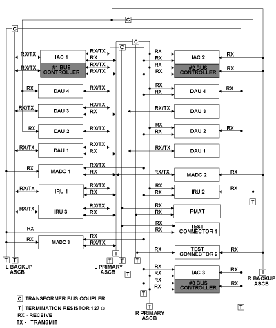
The ASCB and RSB are equivalent in structure, operation, and data configuration. They are electrically isolated, shielded-twisted-pairs of wires (data busses) with resistor terminations. The ASCB has four data busses and the RSB has three data busses. They transmit serial data in two directions (one direction at a time) at a rate of 1.5 5s/bit (0.67 MHz). The data configuration is equivalent to that of high-level data link control (HDLC). The primary difference between the ASCB and RSB is the ASCB uses bus controllers for data control. The coupling of the busses is also different. Four isolation couplers isolate the ASCB busses from each other to prevent a short-circuit on one bus to have an effect on other busses
The ASCB and RSB are failure-operational busses with special qualities that keep them fully operational if an LRU failure occurs. Each LRU has an internal transformer interface that connects to its specified bus through a splice. The transformer electrically isolates the LRU and makes the LRU’s impedance agree with that of the bus. This electrical configuration protects the busses from radio interference, short circuits, LRU failures, lightning, and other unwanted effects. Also, the failure of one LRU can not stop the operation of the ASCB or RSB. This is because no one LRU connects to all ASCB or RSB data busses.
All LRUs in the digital bus system have different addresses. The data transmitted on the ASCB and RSB includes these addresses. When an LRU identifies its address, it transmits data on the bus during a specified time. After an LRU transmits data, it goes back to the ‘monitor only’ mode.
Avionics Standard Communications Buses (ASCB)
The ASCB is the primary bus used by all LRUs in the avionics system. It has four data busses; the left primary, right primary, left secondary,and right secondary busses. Each side of the ASCB has a maximum capacity of 50 LRUs.
The ASCB connects to the LRUs that follow:
- Portable Maintenance Access Terminal (PMAT)
- Integrated Avionics Computers (IACs)
- Micro Air Data Computers (MADCs)
- Inertial Reference Units (IRUs)
- Data Acquisition Units (DAUs)
The data on the ASCB is controlled and synchronized by a bus controller in each of the three IACs. One bus controller at a time has control of the ASCB while the others monitor the ASCB. Each bus controller has built-in test equipment (BITE) that monitors its own operation and the operation of the other controllers. When a bus controller failure occurs, one of the others can continue the usual ASCB control functions. This configuration lets the ASCB to keep a safe minimum level of operation under all conditions. The bus controller lets each LRU transmit data on the ASCB only during a specified time. When it receives the instructions from the bus controller, the LRU transmits data on its primary ASCB and same-side secondary ASCB.
ASCB Structure
- The Honeywell ASCB version C is the principal communications network interconnecting the PRIMUS® 2000XP system and is a fail-operational (if any device connected to the bus fails, the bus remains operational) data bus system
- The ASCB users and the ASCB controllers are all transformer coupled and impedance matched to the data bus transmission lines
- Consists of four data buses:
- Left-side primary bus
- Right-side primary bus
- Left-side backup bus
- Right-side backup bus
- ASCB transmissions consists of words made up of 16 bits
- Bidirectional data flow with a bit transmission rate of 667 kHz
- Data capacity exceeds 50,000 words (16 bit) per second and ASCB can interconnect as many as 50 assorted avionics LRUs
- Data traffic flow on the ASCB is managed by three fail-passive (if a bus controller fails, it becomes passive, and is not capable of transmitting erroneous data on the bus) bus controllers inside IACs
- The bus controllers are connected to three of the four data buses and it outputs request messages on both primary buses and on the on-side backup bus
- Only one bus controller is in control in any given time (the other bus controllers remain in standby status ready to assume control automatically in the event the active bus controller becomes inoperative)
- Forty times per second (every 25 milliseconds), the active bus controller begins a series of interrogations of the subsystems on ASCB
- Each 25 millisecond time block is defined as a "Frame" and there are eight frames per cycle, with different groups of subsystems transmitting in each frame
- Each subsystem is connected to (and can receive data selectively from) three of the four data buses; and outputs its reply data simultaneously on its on-side primary and onside secondary buses
- The output arrangement provides each subsystem with dual-path access to its own-side data and single-path access to all cross-side data and also makes it impossible for any single point fault to disable all four data buses
- Each subsystem responds to its own uniquely defined address transmitted by the active bus controller
- The bus management process at each subsystem remains efficient as all of the data buses are operating synchronously (in response to only one bus controller at a time)
- Since the sequence timing of transmission and reception are predefined and synchronized via the bus controller, each subsystem can inhibit bus interactions during selected portions of its processor cycle without missing any important data
- Each bus subsystem’s transmitters are safety interlocked to ensure that no subsystem can broadcast outside its allotted time slot or in response to another subsystem’s request
- By design, ASCB interfaces are virtually immune to lightning-induced transients, hot shorts, ground shorts, and RF threats
ASCB TRANSFORMER COUPLER A100 (GLOBAL 5000)
ASCB TRANSFORMER COUPLER LOCATIONS
(GLOBAL 5000)
ASCB TRANSFORMER COUPLER LOCATIONS
(GLOBAL Express/XRS)
ASCB Electrical Characteristics
- Each ASCB transmission line pair has a characteristic impedance of 125 ohms ± 5 ohms
- Each ASCB transmission line pair is terminated at its two ends with 127 ohm resistors ± 1%, 1/4 watt
- The cable length between the last stub and the termination resistor is 24 inches
- The characteristic capacitance is 12 ± 2 pico farads/foot
- ASCB transmission lines have a maximum length between terminators of 150 feet
- Stub lengths at each user pickoff shall not exceed 10 inches
- Butt splices with solder rings is utilized for all stub interconnections
- All shields shall be tied at one point to the aircraft frame
- ASCB transmission lines are connected in a daisy chain fashion between user subsystems
- The cable length between users shall not be less than 2 feet
ASCB Frame Structure
There is a total of eight different frames defined, with different groups of subsystems transmitting in each frame. Some subsystems reply in each and every frame, some reply in alternate frames, some in every fourth frame, and some in every eighth frame. Column 1 of the table contains the unique request addresses.
Column 2 gives names of the devices connected to the left-side buses, and column 4 gives the names of devices connected to the right-side buses. Column 3 gives the reply addresses of the users in column 2 and column 5 gives the reply addresses of the users in column 4.
Column 6, 7, and 8 contain the number of 8 bit bytes in the transmitted data per user, the number of milliseconds made available for that user, and the total cumulative time for each user. The pads shown throughout the table are periods of no bus activity to assure that each frame starts exactly 25 msecs after the previous frame.
The 0.25 msecs pad shown at the bottom of each frame is used by the IAC to perform its SWAP RAM function. When the eighth frame is completed, the active bus controller starts over with the first frame, and repeats this process as long as the system has power applied.
The sequence of interrogations is fixed, and any user or subsystem not in the aircraft will still be interrogated at the appropriate time in the frame.Therefore, removal of a unit does not disable the bus functions. TOP OF FRAME and FRAME START are generated by the active bus controller.
ASCB Frame 0 and 1
| QUEST ADDRESS | S1 USER | REPLY ADDRESS | BUS2 USER | REPLY ADDRESS | BYTES | BUS MESSAGE TIME | BUS TOTAL TIME |
|---|---|---|---|---|---|---|---|
| FRAME 0 | |||||||
| TOP OF FRAME | 80 | TOP OF FRAME | 80 | 3 | 0.3022 | 0.3022 | |
| FRAME START | 81 | FRAME START | 81 | 4 | 0.3166 | 0.6188 | |
| BC1 STATUS | A4 | BC1 STATUS | A4 < | 12 | 0.6318 | 1.2506 | |
| PAD | PAD | & | & | 1.9566 | 3.2072 | ||
| PAD | & | PAD | & | & | 1.9566 | 5.1638 | |
| PAD | PAD | 3.9910 | 9.1548 | ||||
| 9B | FTIU-1 | 1B | FTIU-2 | 1F | 36 | 0.9774 | 10.1322 |
| B0 | AFCS-1 | 30 | AFCS-2 | 31 | 11B | 2.1582 | 12.2904 |
| 90 | FMS-1 BASIC | 10 | FMS-2-BASIC | 14 | 98 | 1.8702 | 14.1606 |
| 86 | MADC-1 | 06 | MADC-2 | 07 | 68 | 1.4382 | 15.5988 |
| F0 | DAU-1-A | 70 | >DAU-1-B | 72 | 128 | 2.3022 | 17.9010 |
| 92 | FMS-1-BKGND | 12 | FMS-2-BKGND | 16 | 176 | 2.9934 | 20.8944 |
| 82 | IRS-1 | 02 | IRS-2 | 03 | 102 | 1.9278 | 22.8222 |
| 84 | IRS-3 | 04 | SENSOR-4 | 05 | 102 | 1.9278 | 24.7500 |
| PAD | PAD | 0.2500 | 25.0000 | ||||
| FRAME 1 | |||||||
| TOP OF FRAME | 80 | TOP OF FRAME | 80 | 3 | 0.3022 | ||
| FRAME START | 81 | FRAME START | 81 | 4 | 0.3166 | 0.6188 | |
| BC2 STATUS | A5 | BC2 STATUS | A4 | 12 | 0.6318 | 1.2506 | |
| PAD | PAD | 1.9566 | 3.2072 | ||||
| PAD | PAD | 1.9566 | 5.1638 | ||||
| PAD | PAD | 3.7030 | 8.8668 | ||||
| 99 | PMC-A-1 | 19 | PMC-A-2 | 1D | 46 | 1.1214 | 9.9882 |
| AB | DC-1 | 2B | DC-2 | 2C | 12B | 2.3022 | 11.1384 |
| 91 | FMS-3 BASIC | 11 | FMS-4-BASIC | 15 | 98 | 1.8702 | 13.1526 |
| 8A | MADC-3 | 0A | MADC-4 | 0E | 68 | 1.4382 | 15.5988 |
| F1 | DAU-2-B | 73 | DAU-2-A | 71 | 128 | 2.3022 | 17.9010 |
| 932 | FMS-3-BKGND | 13 | FMS-4-BKGND | 17 | 176 | 2.9934 | 20.8944 |
| 82 | IRS-1 | 02 | IRS-2 | 03 | 102 | 1.9278 | 22.8222 |
| 84 | IRS-3 | 04 | SENSOR-4 | 05 | 102 | 1.9278 | 24.7500 |
| PAD | PAD | 0.2500 | 25.0000 | ||||
ASCB Frame 6 and 7
| REQUEST ADDRESS | BUS1 USER | REPLY ADDRESS | BUS2 USER | REPLY ADDRESS | BYTES | BUS MESSAGE TIME | BUS TOTAL TIME |
|---|---|---|---|---|---|---|---|
| FRAME 6 | |||||||
| TOP OF FRAME | 80 | TOP OF FRAME | 80 | 3 | 0.3022 | 0.3022 | |
| FRAME START | 81 | FRAME START | 81 | 4 | 0.3166 | 0.6188 | |
| BC3 STATUS | A6 | BC3 STATUS | A6 | 12 | 0.6318 | 1.2506 | |
| PAD | PAD | 1.9566 | 3.2072 | ||||
| PAD | PAD | 1.9566 | 5.1638 | ||||
| PAD | PAD | 2.9830 | 8.1468 | ||||
| D4 | GPS-1 | 54 | GPS-2 | 58 | 112 | 2.7018 | 10.2186 |
| D0 | WINDSH-1 | 50 | WINDSH-2 | 51 | 32 | 0.9198 | 11.1382 |
| 88 | EFIS-1 | 08 | EFIS-2 | 0C | 108 | 2.0142 | 13.1526 |
| A2 | FWC-1 | 22 | FWC-2 | 26 | 138 | 2.4462 | 15.5988 |
| F0 | DAU-3-A | 70 | DAU-3-B | 72 | 128 | 2.3022 | 17.9010 |
| 92 | FMS-1-BKGND | 12 | FMS-2-BKGND | 16 | 176 | 2.9934 | 20.8944 |
| 82 | IRS-1 | 02 | IRS-2 | 03 | 102 | 1.9278 | 22.8222 |
| 84 | IRS-3 | 04 | SENSOR-4 | 05 | 102 | 1.9278 | 24.7500 |
| PAD | PAD | 0.2500 | 25.0000 | ||||
| FRAME 7 | |||||||
| TOP OF FRAME | 80 | TOP OF FRAME | 80 | 3 | 0.3022 | 0.3022 | |
| FRAME START | 81 | FRAME START | 81 | 4 | 0.3166 | 0.6188 | |
| BC4 STATUS | BC4 STATUS | A7 | 12 | 0.6318 | 1.2506 | ||
| PAD | PAD | 1.9566 | 3.2072 | ||||
| PAD | PAD | 1.9566 | 5.1638 | ||||
| PAD | PAD | 3.6724 | 8.8362 | ||||
| B6 | DC-3 | 36 | DC-4 | 37 | 128 | 2.3022 | 11.1384 |
| 8B | EFIS-3 | 0B | EFIS-4 | 0F | 108 | 2,0142 | 13.1526 |
| A3 | FWC-3 | 23 | FWC-4 | 27 | 138 | 2.4462 | 15.5988 |
| F1 | DAU-4-B | 73 | DAU-4-A | 71 | 128 | 2.3022 | 17.9010 |
| 93 | FMS-3-BKGND | 13 | FMS-4-BKGND | 17 | 176 | 2.9934 | 20.8944 |
| 82 | IRS-1 | 02 | IRS-2 | 03 | 102 | 1.9278 | 22.8222 |
| 84 | IRS-3 | 04 | SENSOR-4 | 05 | 102 | 1.9278 | 24.7500 |
| PAD | PAD | 0.2500 | 25.0000 | ||||
ASCB Data Transmit Format
To be compatible with the transformer-coupled data bus, all ASCB messages are Manchester II encoded before being applied to the bus. Since Manchester data must transition in the middle of each bit period, the data clock is contained within the data and is easily extracted at each receiver for data decoding. This feature avoids sending a synchronous clock on separate lines along with the data.
The NRZ data is encoded into Manchester II format. To reduce timing problems associated with data skew, jitter, and setting time, the circuit device providing the Manchester II encoder/decoder element with data uses the trailing edge of the transmit clock for its data shifting function.
In receiver mode, the encoder/decoder chip supplies the next circuit device with the NRZ data and a properly phased clock for shifting the data into the system. The next circuit device uses the same trailing clock transition as that used by the encoder/decoder for data transitions.
In order for each receiver to phase lock to the incoming data, a synchronizing signal is added to the beginning of each transmitted message. This synchronizing sequence consists of 8 ±1 Manchester 0 bits, followed by a command sync of 3.0 bit times (defined as 1.5 bit times HIGH and 1.5 bit times LOW).
The data waveform on the bus shows approximately 5 volts peak-to-peak. This amplitude indicates that there is no load on the bus (open circuit). Typical waveform amplitudes are between 3 and 4 volts peak-to-peak and are dependent upon the actual number of users connected to the bus.
Since all users are essentially connected in parallel, more users lower the bus impedance, and consequently the data waveform amplitudes.Amplitudes below 2.5 volts peak-to-peak indicate an abnormally low impedance or abnormally low resistance on the bus.
ASCB Fault Monitoring
CAS messages will be displayed when ASCB failure is detected. The messages are:
ASCB CAS Messages:
| MESSAGE | DEFINITION |
|---|---|
| CAUTION (AMBER) | |
| ASCB FAIL | ASCB validation failed |
| ADVISORY (CYAN) | |
| ASCB CTLR 1-2-3 FAIL | ASCB controller fails |
| ASCB fault | ASCB latent fault |
Also an ASCB Monitor and an ASCB bus reader are part of the portable maintenance access terminal (PMAT).
05/20/16
Radio System Bus (RSB)
The RSB is the primary bus used by the LRUs in the radio communication and navigation systems. The RSB has the primary, left secondary, and right secondary busses. The RSB has a maximum capacity of 32 LRUs.
The RSB connects to the LRUs that follow:
- Very High Frequency (VHF) Communication (COM) Units
- On aircraft with S/B 700-23-002 for Global Express/XRS, Third VHF Communication System
- Very High Frequency (VHF) Navigation (NAV) Units
- Integrated Avionics Computers (IACs)
- Radio Management Units (RMUs)
The RSB operates differently from the ASCB because its LRUs are synchronized to the RSB data and not to bus controllers. The LRU transmits data on its primary RSB and same-side secondary RSB.
RSB Structure
- The Honeywell RSB is the principal communications network interconnecting the line replaceable units in the PRIMUS® II integrated radio subsystem
- A fail-operational data bus system
- The RSB subsystems are all transformer coupled and impedance-matched to the data bus transmission lines
- Consists of three data buses
- Primary bus
- Left-side secondary bus
- Right-side secondary bus
- Data traffic flow on RSB does not require a bus controller
RSB Data Field Structure
- Data flow on RSB is bidirectional with a bit transmission rate of 667 kHz
- Each subsystem outputs its message on the primary and its on-side secondary buses simultaneously
- The outputs arrangement provides each user with dual-path access to its own-side data and single-path access to all cross-side data; andalso makes it impossible for any single-point fault to disable all three data buses
- Each bus subsystems transmitters are safety interlocked to ensure that no subsystem can broadcast outside its allotted time slot or inresponse to another subsystem’s request
- The sequence of transmission is fixed, and any subsystem that is not in the aircraft will still have a time slot assigned at the appropriate timein the field; therefore removal of a unit will not
- By design, RSB interfaces are virtually immune to lightning-induced transients, hot shorts, ground shorts, and RF threats
- A field is defined as a 192 millisecond time period that contains a sequence of 24 messages spaced 8 milliseconds apart
- The cycle starts with message 0 (transmits address 0) and progresses in sequence to message 23
- In the message 0 time slot, the left side NAV unit transmits on both the primary and left-side secondary buses
- In the message 1 time slot, the right side NAV unit transmits on both primary and right-side secondary buses
- In the message 2 time slot, it is reserved for future expansion
- There are 8 message time slots for left-side systems, 8 message time slots for right-side systems and 8 message time slots for spare systems
- When message number 23 is completed, the cycle begins again with message number 0, and the cycle repeats for as long as the system has power applied
RSB Fault Monitoring
The RSB is monitored and status indications are provided by the radio management unit (RMU). On the ground, the RMU will self-initiate a system power-on self-test when power is first applied to the avionics bus and at other times with weight on wheels when power has been off more than 5 to 10seconds.
Failures that occur during POST are displayed in a test failure window below the COM and NAV display areas. The radio system failures are in one failure window; the function failures are in a second window. The failure windows are removed by pressing the TST key.
| ANNUNCIATOR | FAILURE REASON |
|---|---|
| CHK RMU (x) | RSB primary bus offside RMU messages not detected; where x = 1 if offside is RMU 1 and messages 3 or 15 not detected; and x = 2 if offside is RMU 2 and messages 4 or 16 not detected. |
| CHK COM1 UNIT | RSB primary or secondary bus onside COM Unit message 9 not detected when RMU1 is performing test; OR RSB primary bus offside COM Unit message 9 not detected when RMU 2 is performing test. |
| CHK COM2 UNIT | RSB primary or secondary bus onside COM Unit message 10 not detected when RMU2 is performing test; OR RSB primary bus offside COM Unit message 10 not detected when RMU 1 is performing test. |
| CHK COM3 UNIT | RSB primary bus COM Unit message 11 not detected. |
| CHK NAV1 UNIT | RSB primary or secondary bus onside NAV Unit messages 0, 6, 12 or 8 not detected when RMU1 is performing test; OR RSB primary bus offside NAV Unit messages 0, 6, 12, or 18 not detected when RMU 2 is performing test. |
| CHK NAV2 UNIT | RSB primary or secondary bus onside NAV Unit messages 1, 7, 13, or 19 not detected when RMU 2 is performing test; OR RSB primary bus offside NAV Unit messages 1, 7, 13, or 19 not detected when RMU 1 performing test. |
Digital Audio Bus
Digital Audio Bus Structure
The PRIMUS® II system uses a digital data bus to carry digital audio information from the remote radio system line replaceable units to the flight crew’s audio panels. It provides the advantage of complete independence from grounding problems within the aircraft and the absolute elimination of ground noise pick-up, whine and cross-talk. By design, the digital interfaces are virtually immune to lightning-induced transients, hot shorts, ground shorts, and RF threats.
Precludes any fault propagation between the various interconnected users. Interconnect structure provides superior RF emissions characteristics, ensuring that the digital bus does not interfere with sensitive receivers on the aircraft. The buses are designated left/pilot (bus 1) and right/copilot (bus 2).
The left NAV only transmits on the left audio bus and the right NAV only transmits on the right audio bus. Each remote LRU contains a cluster module,which contains five digitizer chips. The five digitizers are sampled in sequence, and their outputs are assembled into digital data message and the message is transmitted on the digital audio bus. Remote COM units provide digitized COM receive audio, and the remote NAV units provide digitized VOR/LOC, ADF, and marker beacon audio.
NAV units also feed discrete DME digital bits to enable an audio oscillator in the audio panel when Morse code identifier audio is present. Two separate digital audio buses are fed to all audio panels for flight crew selection allowing the flight crew to conveniently select and control each individual audio source
Digital Audio Bus Transmit Format
Data flow on the digital audio bus is unidirectional with a transmission rate of 1.0 MHz (1.0 µs/bit). Data traffic flow on the digital audio bus does not require a bus controller. Data is transmitted in the following sequence:
- First permeable
- First sync signal
- Six bytes from the COM unit
- Second permeable
- Second sync signal
- Six bytes from the NAV unit
There are 5 µs between COM and NAV messages. sampled at 7.8125 kHz rate. The COM unit transmits a data string of 59 µs every 128 µs.
The NAV unit receives the COM message, synchronizes its transmitter, and then transmits the 59 µs NAV message immediately after the COM message.If the COM unit fails, the NAV goes into a free run mode so as not to lose the NAV digital signal. In each transmitted message, the preamble consistsof 8 ± 1 Manchester one bits.
Status Byte Definition
| STATUS | ||
|---|---|---|
| BIT | COM | NAV |
| COM | NAV | |
| 1 | VHF COM XMIT | Spare |
| 2 | VHF COM Audio enable | DME 1 IDENT |
| 3 | HF COM XMIT | DME 2 IDENT |
| 4 | HF COM | VHF COM XMIT |
| 5 | Spare | VHF COM Audio enable |
| 6 | Spare | Spare |
| 7 | Spare | Spare |
The Sync consists of 1 and 1/2 bits of HIGH followed by 1 and 1/2 bits of LOW which receiver uses for synchronization. The remaining six bytes contain eight bits each, at 1.0 µs/bit.
The status byte identifies the message as COM or NAV. The digital audio panel then decodes and processes the individual bytes as appropriate to the flight crew selection.
High-level Data Link Control (HDLC) Bus
HDLC Bus Structure
There are six HDLC buses used on Global Express aircraft to provide display formats to DUs from IACs. Each IAC has two display processors (DP) to generate the HDLC buses. The HDLC bus is a high-speed serial data link bus operating at 1 MHz. Each DP can output a unique display format every 25 milliseconds.
ARINC 429 Data Bus
- The 429 bus system is made up of transmitters and receivers connected by shielded twisted wire pairs
- Data is transmitted by a single transmitter to either a single receiver or to a group of up to 20 receivers connected in parallel
- Each 429 bus carries data in one direction only
- Bidirectional transmission between two LRUs must be accomplished by using two sets of transmitters, receivers, and twisted wire pair buses
- ARINC 429 transmissions consist of "words" made up of 32 bits and these words are transmitted at 12.5 kHz (low speed) or 100 kHz(high speed)
Field Definitions
Label – Bits 1 through 8
In the octal label, bits 1 through 8 are used to represent octal numbers 0 through 377. The eight bits are broken into two groups of three and onegroup of two bits. Each group represents a digit encoded in binary. The following tables describe the fields used in an ARINC 429 word.
Source destination identifier (SDI) – bits 9 and 10 (table B2) are used to identify a specific LRU.
Data – Bits 11 through 29
Units, ranges, resolution, refresh rate and number of significant bits of information transferred are encoded in either binary coded decimal (BCD), orbinary (BNR) notation.
Discrete information is also sent via ARINC 429 bus. For some high-resolution data words, bits 9 and 10 are also data bits. Bits 30 and 31 may also be data bits.
Sign Status Matrix – Bits 30 and 31
Bits 30 and 31 are used for sign status matrix function. For BNR data transmission, bit 29 is also used for SSM.
Parity – Bit 32
Parity is a simple error-checking method used in data handling. ARINC 429 transmissions are always odd parity, and bit 32 is the parity bit. Bit 32 is set to 1 (one) when there is an even number of binary 1s in the word and set to 0 (zero) when there is an odd number of binary 1s in the word.Therefore, the word transmitted always contains an overall odd number of 1s.
ARINC 429 Characteristics
ARINC 429 transmissions return to the zero voltage condition at the end of each bit period. A high on line A and a low on line B is a binary one. A low on line A, and a high on line B is a binary zero. When both line A and line B are at zero volts, there is no data bit being transmitted.
ARINC 429 transmitters must give a minimum dead time of four bits between messages because the receivers synchronize to the transmitted data by recognizing the four-bit dead time as the synchronizing command. Trilevel bipolar modulation consisting of HI (binary 1), LO (binary 0), and NULL (no data).
The differential output signal voltage across the specified output terminals (balanced to ground at the transmitter) when the transmitter is open circuit is as follows:
| HI(1) | NULL(V) | LO(0) | |
|---|---|---|---|
| Line A to line B | +10±1.0 | 0±0.5 | −10±1.0 |
| Line A to ground | +5±1.0 | 0±0.25 | −5±1.0 |
| Line B to ground | −5±1.2 | 0±0.25 | +5±1.0 |
The differential voltage presented at the receiver is dependent upon line length and the number of receivers connected to a transmitter.The nominal voltage range at the terminals is between 6.5 and 13 volts peak-to-peak. The receiver input common mode voltages (line A to ground and line B to ground) are not specified because of the difficulties of defining ground with any satisfactory degree of precision.
The transmitter output impedance is 75 ohms and the receiver input impedance is typically 8,000 ohms. No more than 20 receivers (400 ohms minimum for 20-receiver loads) should be connected to one bus. Each receiver contains isolation provisions to ensure that the occurrence of any reasonably probable failure does not cause loss of data to the others. Bus fault tolerances for shorts and steady state voltages are designed into the transmitter and receiver.
ARINC 453 Data Bus
The ARINC 453 serial digital bus transmits a 1,600-bit serial data word. The 1,600 bit word contains 64 bits of control information followed by 1,536 bit of data. Data is transmitted at the rate of 1 megabit per second. ARINC 453 data buses are used for EGPWS video to the MFDs.
ARINC 717 Data Bus
The ARINC 717 serial digital data bus is used to transmit the aircraft flight data from DAU 4 to the flight data record. The ARINC 717 characteristics are as follows:
- The data is transmitted in Harvard Bi-Phase format
- Each data frame is repeated every 4 seconds
- Each frame consists of 4 subframes which occupy one second each
- The Global uses 128 words in each subframe
- Each word consists of 12 bits. Bit number one of each subframe is the synch word
- The octal code for subframe 1 to 4 synch are 1107, 2670, 5107 and 6670 respectively
Weather Radar Picture Data Bus (WXPD)
The weather radar information to the EFIS is to be carried on a digital. One high speed weather radar picture data bus (WXPD). The WXPD transmits partially scan converted weather radar picture data to the MFDs. The WXPD is encoded into a series of 5 bit words.
There are 256 of these words sent for each data transmission corresponding to one radial scanned by the radar. The data is encoded onto a high speed data bus using Manchester II coding. The encoded radar data has a display aspect ratio of 3 vertical by 4 horizontal with the origin of the display at the bottom center. The bit rate of WXPD is 1 MHz.
RS 232 Data Bus
- Refers to an electrical specification as defined by Electronic Industries Association (EIA)
- Employs serial binary data interchange for interface between DTE and DCE
- Bidirectional data flow with data signaling rate capability up to 20 kbps; 9,600 bps for high speed and 75 bps for low speed
- Typical connector, DB-25 and the maximum cable length is 50 feet. Examples are:
- The link between the personal or laptop computer and the IAC software loading port
- The link between a laptop computer and the DAU software loading port
- The link between the DAU and other Honeywell LRUs to the PMAT
RS 422 Data Bus
- Refers to an electrical specification as defined by Electronic Industries Association (EIA)
- Employs for the interchange of serial binary data between data terminal equipment (DTE) and data communication equipment (DCE) or in any point-to-point interconnection of serial binary signals between digital equipment
- An improvement over RS 232, capable of higher signaling speed, permits longer cable lengths and is less susceptible to interference
- Unidirectional data flow with data signaling rate capability up to 10 Mbps
- Uses one transmitter and supports multiple receivers up to 10 maximum Examples are:
- The bus that carries data from the GP-400 guidance panel to the IACs
- The bus that interfaces the FMS CDU with the IACs
- The bus that interfaces the MFD Controller with the IACs
System Monitoring
Continuous Built-In Test
ASCB Fault Monitoring
CAS messages are displayed when ASCB failure is detected.
Also an ASCB monitor and an ASCB bus reader are part of the portable maintenance access terminal (PMAT).
Radio System Bus Fault Monitoring
The radio system bus (RSB) is monitored and status indications are provided by the radio management unit (RMU).
On the ground, the RMU self-initiates a system power-on self-test when power is first applied to the avionics bus and at other times with weight on wheels when power has been off more than 5 to 10 seconds.
Failures that occur during POST are displayed in a test failure window below the COM and NAV display areas. The radio system failures are in one failure window; the function failures are in a second window. The failure windows are removed by pressing the TST key.
Digital Audio Bus Faults
Digital audio bus faults do not have an associated indication or message. Faults result in audio-related issues with the COM and NAV radios 1or 2.
High-Level Data Link Control Bus
High-level data link control bus issues result in a blank cockpit display with a red X and a CHECK DU message. A CAIMS active fault (IMT code) is generated and troubleshooting instructions are provided via CAIMS IMT failure code look-up tables.
ARINC 429 Data Bus
ARINC 429 data bus issues are indicated as missing or invalid information on displays as an active fault in CAIMS (may be an active fault for several LRUs).
ARINC data bus issues can also be confirmed in CAIMS, system diagnostics mode by selecting ATA 31, DAUs and checking ARINC 429 activity and validity.
RS 232 Data Bus
RS 232 data bus issues can result in the inability to do NVM downloads.
RS 422 Data Bus
RS 422 data bus issues result in the inability to make selections from the PFD, MFD and EICAS controllers as well as FMS selections.
ARINC 453 Data Bus
ARINC 453 issues result in missing terrain video on one or both MFDs.
Weather Radar Picture Data Bus
Weather radar picture data bus (WXPD) issues result in missing weather radar video on one MFD.
ARINC 717 Data Bus
ARINC 717 issues result in an FDR FAIL message.
09/15/20
Component Location Index
| Component Location Index | |||
|---|---|---|---|
| IDENT | DESCRIPTION | LOCATION | IPC REF |
| A235 | LEFT PRIMARY ASCB ISOLATION COUPLER | ZONE(S) 221/222 | 31-44-01 [ GX ] [ GXRS ] [ G5000 ] |
| A236 | RIGHT PRIMARY ASCB ISOLATION COUPLER | ZONE(S) 221/222 | 31-44-01 [ GX ] [ GXRS ] [ G5000 ] |
| A97 | LEFT SECONDARY ASCB ISOLATION COUPLER | ZONE(S) 141/142 | 31-44-01 [ GX ] [ GXRS ] [ G5000 ] |
| A100 | RIGHT SECONDARY ASCB ISOLATION COUPLER | ZONE(S) 141/142 | 31-44-01 [ GX ] [ GXRS ] [ G5000 ] |


















