10/01/19
Message Overview:
Fault Message:
L T30 WRG/T30 PROBE/EEC XCK MA
Fault Code:
7327129LBR
Associated CAS:
| Reporting LRU: | Left Engine Electronic Controller (EEC) |
| System Description: | 73-20-00 |
| Schematic Diagram: | None |
| Wiring Diagram: | 71-50-01 [ Global Express ] [ G5000 ] [ Global XRS ] |
Fault Description:
This message shows when there is an unsatisfactory difference between the signals from the two channels of the T30. The T30 Thermocouple circuits are continuously monitored by the Full-Authority Digital Engine-Controller (FADEC).
Possible Causes:
- T30 Thermocouple
- Left Engine Electronic Controller (EEC)
- Associated Wiring
Troubleshooting Tips:
Advisory Wire/Service Bulletin: None
Forum Articles/Infoservice/Newsletter: None
Quick Links:
| Start the Engine | AMM 71-00-00-866-806 [ Global Express ] [ G5000 ] [ Global XRS ] |
| Engine Shutdown (Usual) | AMM 71-00-00-866-809 [ Global Express ] [ G5000 ] [ Global XRS ] |
| Engine Safety Precautions | AMM 71-00-00-910-801 [ Global Express ] [ G5000 ] [ Global XRS ] |
| Opening of the Cowls | AMM 71-10-00-010-801 [ Global Express ] [ G5000 ] [ Global XRS ] |
| Closing of the Cowls | AMM 71-10-00-410-801 [ Global Express ] [ G5000 ] [ Global XRS ] |
| Removal of the Upper Cowls | AMM 71-12-01-000-801 [ Global Express ] [ G5000 ] [ Global XRS ] |
| Installation of the Upper Cowls | AMM 71-12-01-400-801 [ Global Express ] [ G5000 ] [ Global XRS ] |
| Removal of the Bypass-Duct Access Panels (451AL/461AL, 451BL/461BL, 451CL/461CL, 451DL/461DL, 451EL/461EL, 452FR/462FR, 452GR/462GR, 452HR/462HR, 452JR/462JR, 452KR/462KR) |
AMM 72-71-01-000-801 [ Global Express ] [ G5000 ] [ Global XRS ] |
| Installation of the Bypass-Duct Access Panels (451AL/461AL, 451BL/461BL, 451CL/461CL, 451DL/461DL, 451EL/461EL, 452FR/462FR, 452GR/462GR, 452HR/462HR, 452JR/462JR, 452KR/462KR) |
AMM 72-71-01-400-801 [ Global Express ] [ G5000 ] [ Global XRS ] |
| Deactivation of the Thrust Reverser (for Maintenance) | AMM 78-30-00-040-801 [ Global Express ] [ G5000 ] [ Global XRS ] |
| Activation of the Thrust Reverser (for Maintenance) | AMM 78-30-00-440-801 [ Global Express ] [ G5000 ] [ Global XRS ] |
| Removal of the Combustion Section Fairings | EMM 72-03-02-000-801 [ Global Express ] [ G5000 ] [ Global XRS ] |
| Installation of the Combustion Section Fairings | EMM 72-03-02-400-801 [ Global Express ] [ G5000 ] [ Global XRS ] |
| Removal of the Eng Electronic Controller (EEC) Mod 73-101559 |
EMM 73-21-01-000-801-B00 [ Global Express ] [ G5000 ] [ Global XRS ] |
| Installation of the Eng Electronic Controller (EEC) Mod 73-101559 |
EMM 73-21-01-400-801-B001 [ Global Express ] [ G5000 ] [ Global XRS ] |
| Removal of the T30 Thermocouples | EMM 73-21-07-000-801 [ Global Express ] [ G5000 ] [ Global XRS ] |
| Installation of the T30 Thermocouples | EMM 73-21-07-400-801 [ Global Express ] [ G5000 ] [ Global XRS ] |
| Wire Repair - Maintenance Practices - ALL | SPM 20-12-10-02 [ Global Express ] [ G5000 ] [ Global XRS ] |
Troubleshooting Recommendations:
CAUTION: DO NOT DO ELECTRICAL CHECKS INTO THE ENGINE ELECTRONIC CONTROLLER (EEC). IF YOU DO NOT OBEY THIS INSTRUCTION, DAMAGE TO THE EEC CAN OCCUR.
- Perform a deactivation of the thrust reverser and open the cowl.
- Get access to the left engine inboard and outboard thermocouples.
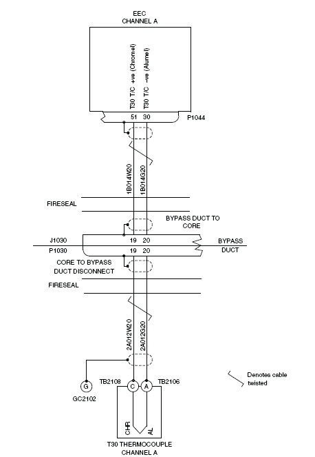
- Disconnect the following electrical connectors (P1044, P1047, P1032 and P1030) and terminals (TB2108, TB2106, TB2208 and TB2206).
- Examine the interface wiring, terminals and connectors for damage between:
- The T30 terminal block for channel A and P1044.
- The T30 terminal block for channel B and P1047.
NOTE: Look specially for signs of chafing adjacent to clips, the condition of connector pins, and kinks or strains in the wiring.- If damage found, repair as required and go to step 11.
- If damage not found, continue with next step.
- Perform wiring checks between J1030 and P1044 (EEC).
- If wiring checks are not good, repair defective wiring as required and go to step 11.
- If wiring checks are good, continue with next step.
- Perform wiring checks between terminal TB2108 and P1030.
- If wiring checks are not good, repair defective wiring as required and go to step 11.
- If wiring checks are good, continue with next step.
- Perform wiring checks between terminal TB2106 and P1030.
- If wiring checks are not good, repair defective wiring as required and go to step 11.
- If wiring checks are good, continue with next step.
- Perform wiring checks between J1032 and P1047 (EEC).
- If wiring checks are not good, repair defective wiring as required and go to step 11.
- If wiring checks are good, continue with next step.
- Perform wiring checks between terminal TB2208 and P1032.
- If wiring checks are good, replace T30 thermocouple and go to step 11.
- If wiring checks are not good, continue with next step.
- The active fault still shows, replace Left EEC.
- Close the cowl and perform a activation of the thrust reverser.
- Do close out.

