09/28/19
Message Overview:
Fault Message:
L SAV CH A WRG/SAV [SOL] RNG MA
Fault Code:
7327316LBR
Associated CAS:
| Reporting LRU: | Left Engine Electronic Controller (EEC) |
| System Description: | 80-11-00 |
| Schematic Diagram: | 80-11-00 [ Global Express ] [ G5000 ] [ Global XRS ] |
| Wiring Diagram: | 71-50-01 [ Global Express ] [ G5000 ] [ Global XRS ] |
Fault Description:
An electrical fault in the Starter Air Valve (SAV) Solenoid has been detected by the Engine Electronic Controller (EEC) 1 CH A. Inhibited during Take-Off and Landing.
Possible Causes:
- Left Starter Air Valve (SAV)
- Left Engine Electronic Controller (EEC)
- Secondary Power Distribution Assembly (SPDA) 2 (A14)
- Associated Wiring
Troubleshooting Tips:
Advisory Wire/Service Bulletin:
- AW700-45-0065 - CAIMS Nuisance Fault Messages
- NTO No.: 175 - Nuisance Cockpit Effects and Fault Messages
Forum Articles/Infoservice/Newsletter: None
NOTE: Both Ch A and CH B SAV solenoid circuits faults must be detected to set the L ENG SAV FAIL (Amber) CAS message.
Quick Links:
| Removal of the Secondary-Power Distribution Assemblies |
AMM 24-62-01-000-801 [ Global Express ] [ G5000 ] [ Global XRS ] |
| Installation of the Secondary-Power Distribution Assemblies |
AMM 24-62-01-400-801 [ Global Express ] [ G5000 ] [ Global XRS ] |
| Opening of the Cowls | AMM 71-10-00-010-801 [ Global Express ] [ G5000 ] [ Global XRS ] |
| Closing of the Cowls | AMM 71-10-00-410-801 [ Global Express ] [ G5000 ] [ Global XRS ] |
| Removal of the Eng Electronic Controller (EEC) Mod 73-101559 |
EMM 73-21-01-000-801-B00 [ Global Express ] [ G5000 ] [ Global XRS ] |
| Installation of the Eng Electronic Controller (EEC) Mod 73-101559 |
EMM 73-21-01-400-801-B001 [ Global Express ] [ G5000 ] [ Global XRS ] |
| Removal of the Starter Air Valve | EMM 80-11-03-000-801 [ Global Express ] [ G5000 ] [ Global XRS ] |
| Installation of the Starter Air Valve | EMM 80-11-03-400-801 [ Global Express ] [ G5000 ] [ Global XRS ] |
| Wire Repair - Maintenance Practices - ALL | SPM 20-12-10-02 [ Global Express ] [ G5000 ] [ Global XRS ] |
Troubleshooting Recommendations:
- Open the engine Cowls.
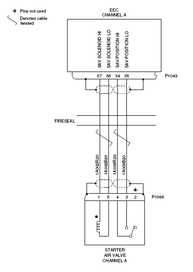
- Measure for 28 VDC at the LH SAV solenoid channel A (P1065).
- If there is 28 VDC, go to step 4 (when the SAV is commanded open).
- If there is no 28 VDC, continue with next step.
- Perform wiring checks between the SPDA 2 (A14P1) and the EEC 1 (P1045).
- If wiring checks are not good, repair defective wiring as required and go to step 8.
- If wiring checks are good, continue with next step.
- Perform wiring checks between the EEC 1 (P1043) and the LH SAV (P1065).
- If wiring checks are not good, repair defective wiring as required and go to step 8.
- If wiring checks are good, continue with next step.
- Swap the SPDA 2 with the SPDA 3. Is the fault still present?
- If NO, replace SPDA 2 and go to step 8.
- If YES, continue with next step.
NOTE: You may swap if there is no 28 VDC between the SPDA 2 and the EEC 1.
- Swap the Left SAV with Right SAV between engines. Is the fault still present?
- If NO, replace Left SAV and go to step 8.
- If YES, continue with next step.
- Replace the EEC 1.
- Close the cowls.
- Do close out.
